See Our Past Work

Sinitski Structural Engineering Ltd. is capable of providing robust structural solutions. This page shows a sample of our past projects, and is updated from time to time. Please note that our title blocks have been removed from all drawings and schematics to protect confidential client information.

Case 1: Structural Repair of Broken Attic Truss

For a private residential project in Ottawa, Sinitski Structural Engineering Ltd. developed a precise multi-step remediation protocol to address split truss web members in the roof structure. The repair strategy focuses on the surgical removal of damaged components and the restoration of structural integrity through a specific five-step process.

The Repair Process

The engineering plan mandates a “one-at-a-time” approach to ensure the stability of the roof system during the intervention. The process involves:

  • Removal: Carefully cutting out the compromised web member and trimming existing nail plates without bending or damaging the surrounding timber.
  • Replacement: Installing a new web member of matching size in an identical orientation, ensuring a snug fit that does not force or flex the existing truss.
  • Reinforcement: The critical phase involves attaching 1/2″ plywood or OSB gusset plates to both faces of the truss. These plates are secured using a combination of construction-quality adhesive and a staggered nailing pattern (0.131″ x 2.5″ nails) to ensure a high-strength bond.
  • Finalization: The repair is completed by reinstalling all necessary blocking and bracing to return the truss to its full design capacity.

By specifying exact dimensions for the gusset plates—such as the 2′-8″ length and 16″ minimum overlap—and requiring staggered nailing, the design ensures that the load-path is properly restored across the repaired joint. This engineered solution provides a robust alternative to full truss replacement, maintaining the safety and longevity of the residence.

Case 2: Custom Sawmill Enclosure

For this local sawmill project, Sinitski Structural Engineering Ltd. engineered a robust, open-concept building designed to handle heavy operational loads while maintaining long-term flexibility. The structural schematics prioritize a high-clearance interior and a reinforced slab-on-grade foundation, essential for the installation and movement of heavy milling machinery. By utilizing a clear-span truss system and strategic column placement, the design strictly adheres to the client’s operational requirements for an unobstructed workflow, ensuring that the heavy timber processing can occur without structural interference.

Adaptive Design & Future-Proofing

A core focus of the SSEL design was spatial versatility. Recognizing that industrial needs evolve, the building’s structural bones were engineered to support multiple lifecycles:

  • Load Capacity: The foundation and framing are over-engineered to accommodate diverse industrial uses beyond sawmilling, such as heavy equipment storage or manufacturing.
  • Modular Potential: The layout allows for future partitioning or the addition of mezzanine levels without compromising the primary structural integrity.
  • Permit-Ready Precision: Detailed sections for building envelopes, insulation, and moisture barriers ensure the structure meets modern energy codes, making it easier to convert into a fully conditioned workspace or commercial garage in the future.

This “built-to-last, designed-to-change” philosophy ensures the landowner’s investment remains valuable for decades, transitioning seamlessly from a specialized sawmill to a multipurpose industrial asset.

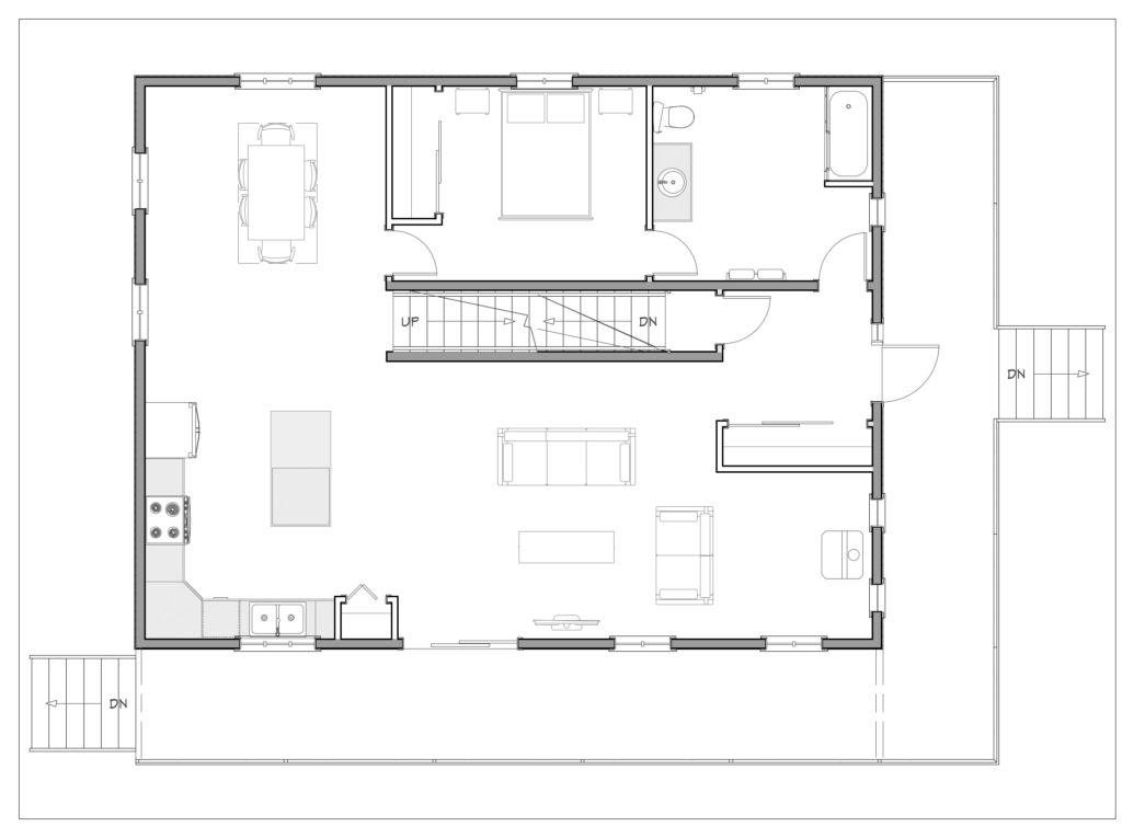
Case 3: Full Design of a Modern Farmhouse

For this residential project, Sinitski Structural Engineering Ltd. delivered a comprehensive design package for a custom modern farmhouse, blending traditional aesthetics with high-performance structural engineering. The architectural vision features a striking balance of vertical board-and-batten siding, expansive glazing, and a signature wraparound porch, creating a seamless connection between the interior living spaces and the surrounding landscape.

Engineered for Comfort and Longevity

The structural schematics focus on creating an open, airy floor plan that reflects the needs of a growing family. Key engineering highlights include:

  • Integrated Framing: SSEL utilized advanced wood-frame engineering to support vaulted ceilings and wide-span openings, allowing for the “great room” concept the clients desired without the need for intrusive support columns.
  • Foundation & Drainage: Given the local climate, the design includes a reinforced foundation wall system and a sophisticated perimeter drainage strategy to ensure a dry, stable basement for decades to come.
  • Energy-Efficient Envelope: The detailing specifies high-R-value insulation and air-sealing techniques, ensuring the home remains thermally efficient during harsh winters while maintaining a classic farmhouse silhouette.

The result is a “dream home” that prioritizes both form and function—a structurally sound sanctuary designed to evolve alongside the couple. From the precise roof pitch to the timber-accented porch details, every element was calculated to provide a lifetime of structural reliability.

Case 4: Full Design of a Duplex Rental

For this multi-unit development project, Sinitski Structural Engineering Ltd. transformed a vacant lot into a high-utility investment property by designing a modern bungalow duplex. SSEL provided a full-service technical package, integrating architectural, structural, electrical, and plumbing schematics into a cohesive set of “Issued for Construction” documents. The design prioritizes a mirrored, space-efficient layout that maximizes the building’s footprint while ensuring each unit maintains a private, premium residential feel.

Comprehensive Multi-Disciplinary Engineering

To ensure the long-term profitability and code compliance of the investment, the engineering team focused on several critical systems:

  • Acoustic & Fire Separation: SSEL engineered a high-performance fire-rated party wall and integrated sound-attenuation assemblies, essential for maintaining privacy and safety between the two dwelling units.
  • Integrated MEP Systems: The electrical and plumbing plans were meticulously mapped to provide independent metering and optimized routing, reducing future maintenance costs for the owners.
  • Structural Efficiency: Utilizing a combination of engineered wood trusses and a robust foundation wall system, the structure is designed for rapid assembly and durability against local environmental loads.
  • Modern Accessibility: As a bungalow design, the floor plan emphasizes one-level (plus basement) living, increasing the property’s marketability to a wider range of potential tenants, including seniors and individuals with mobility considerations.

By managing the full spectrum of technical design, SSEL ensured that the transition from vacant land to a revenue-generating asset was backed by precise, permit-ready documentation. This holistic approach minimizes construction delays and provides the owners with a resilient, low-maintenance residential building.

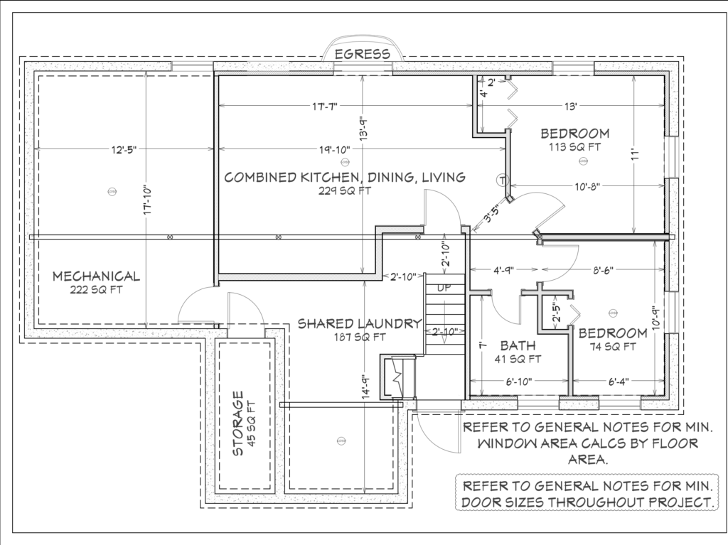
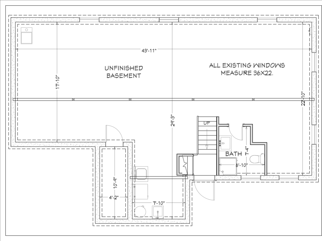
Case 5: Basement Conversion Into SDU

For this residential conversion project, Sinitski Structural Engineering Ltd. engineered the transformation of an underutilized basement into a fully compliant Secondary Dwelling Unit (SDU). By developing detailed architectural and structural plans, SSEL provided the homeowners with a clear roadmap to unlock the latent value of their property, turning a storage area into a modern, revenue-generating living space.

Maximizing Subterranean Potential

Converting a basement into an independent residence requires navigating complex building codes and structural constraints. SSEL’s design approach focused on three core pillars:

  • Structural Modification: The plans included precise specifications for creating a separate, code-compliant entrance and ensuring that any modifications to the foundation or load-bearing walls maintained the integrity of the primary residence above.
  • Life Safety & Egress: A critical component of the SDU conversion was the design of oversized egress windows and fire-rated assemblies. SSEL’s schematics ensured that the unit meets all municipal fire separation and emergency exit requirements, providing peace of mind for both the owners and future tenants.
  • Optimal Space Planning: The architectural layout was optimized to make the most of the existing footprint, incorporating a functional kitchen, living area, and bathroom while strategically managing the placement of utility lines and HVAC bulkheads to maintain maximum ceiling height.

By providing a professional, permit-ready design package, SSEL empowered the owners to reinvest their savings into this high-yield asset. This project serves as a prime example of how strategic engineering can turn unused square footage into a vehicle for long-term financial growth.

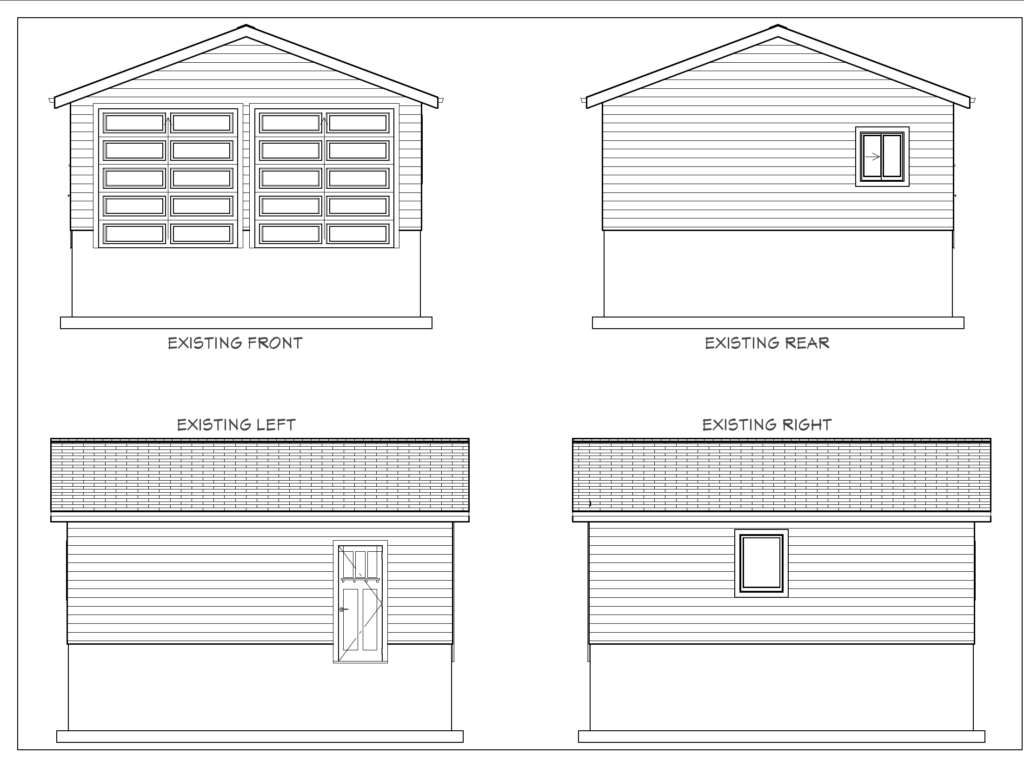
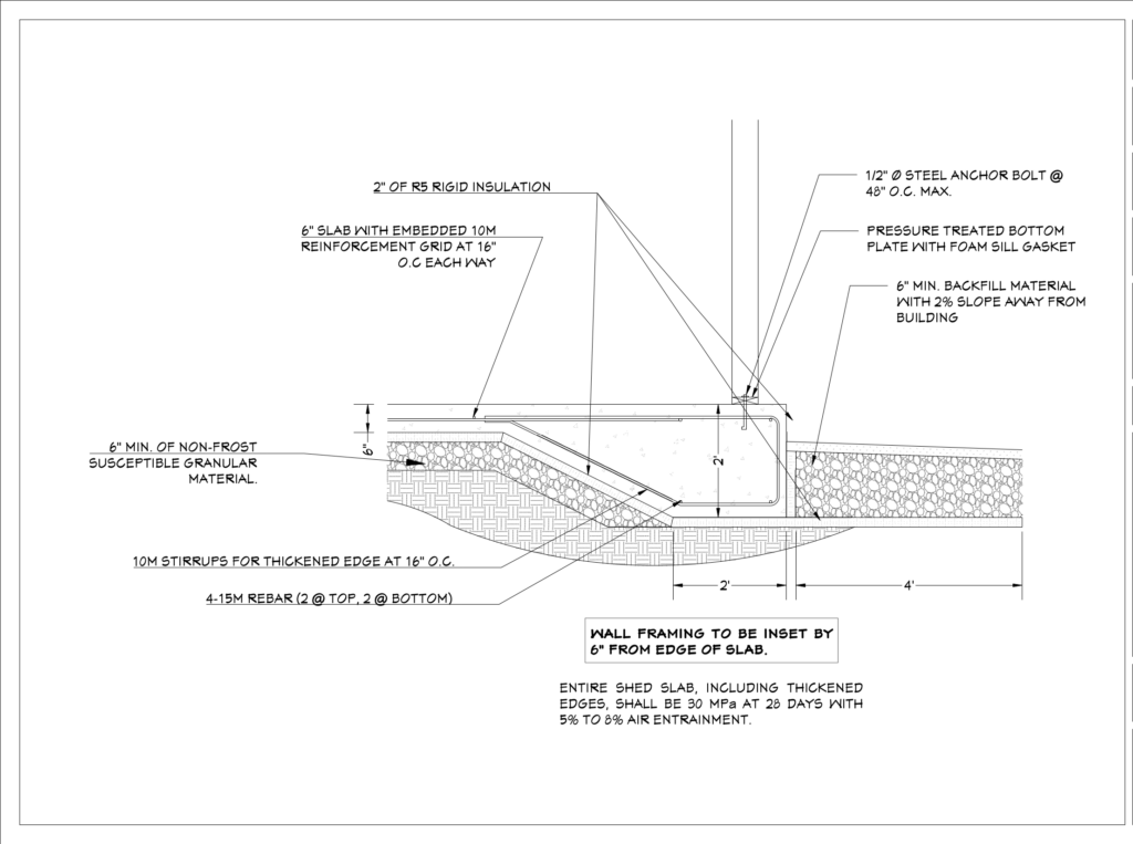
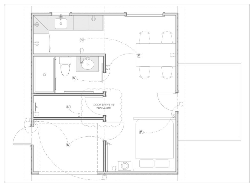
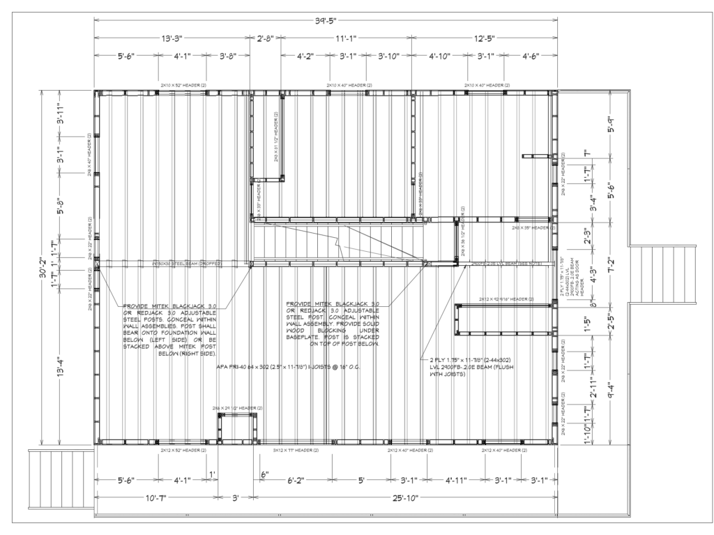
Case 6: Garage Conversion Into SDU

For this secondary dwelling project, Sinitski Structural Engineering Ltd. engineered the total conversion of an existing detached garage into a high-end, self-contained living unit. By delivering a comprehensive suite of architectural and structural plans, SSEL enabled the homeowners to pivot from having a simple storage structure to owning a versatile residential asset. This strategic conversion not only optimizes the property’s footprint but also provides a sustainable source of rental income or a private guest house, allowing the owners to maximize their equity and reinvest in future endeavors.

Precision Engineering for Adaptive Reuse

Converting a detached accessory building into a permanent residence involves complex structural and building science challenges. SSEL’s design addressed several key technical areas:

  • Structural Retrofitting: The plans included a detailed assessment of the existing slab and framing, specifying necessary reinforcements to accommodate new residential live loads and updated roofing requirements.
  • Building Envelope & Thermal Performance: SSEL developed high-performance wall and roof sections to meet modern energy efficiency standards, ensuring the unit remains comfortable year-round despite its original unconditioned state.
  • Modern Architectural Layout: The design features a contemporary open-concept interior that makes the most of the compact footprint, utilizing strategic window placement for natural light and vaulted ceilings to create a sense of volume.
  • Code-Compliant Life Safety: Every aspect of the design—from fire-rated separations to municipal egress requirements—was meticulously planned to ensure a smooth permit approval process and the long-term safety of the occupants.

By providing professional, “Issued for Permit” documentation, SSEL turned an underutilized garage into a premium living space that adds significant functional and financial value to the property.

Case 7: Emergency Structural Intervention (Commercial)

For this critical intervention, Sinitski Structural Engineering Ltd. was retained to conduct an emergency structural assessment of a heritage commercial building in North Stormont experiencing active structural distress. The site review revealed a high-risk failure of the load-bearing exterior masonry, with the rear wall exhibiting significant inward bowing and a loss of lateral stability. SSEL’s rapid response provided the owners with a vital technical roadmap to stabilize the structure and mitigate the immediate threat of a partial collapse.

Critical Findings & Remediation Strategy

The comprehensive report issued by SSEL identified several interconnected points of failure requiring immediate engineering attention:

  • Masonry Instability: The exterior brick walls showed advanced signs of failure, necessitating the design of a robust lateral bracing system to arrest the movement of the rear wall and redistribute structural loads safely.
  • Substructure Decay: Investigations within the basement uncovered severe rot and decay in the timber joists and corner posts due to long-term moisture exposure. SSEL specified a “sistering” reinforcement strategy and the installation of new structural posts to restore the building’s primary vertical load path.
  • Heritage Preservation: Recognizing the building’s historical value, SSEL’s remediation plan prioritized stabilization techniques that preserve the architectural character while modernizing the structural capacity to meet current safety standards.
  • Phased Stabilization: The engineering instructions provided a clear hierarchy of repairs, starting with emergency shoring and progressing to permanent timber and masonry restoration, allowing the owner to manage the stabilization in a controlled, safe manner.

Through this emergency engagement, SSEL provided the technical expertise necessary to protect a piece of local heritage, transforming an active structural crisis into a manageable restoration project.

Case 8: Emergency Structural Intervention (Residential)

In response to a critical request for a luxury residence in Stittsville, Sinitski Structural Engineering Ltd. conducted an emergency site visit to address the sudden failure of a primary load-bearing column within a residential garage. The structural compromise was severe, involving a wood-post-to-steel-beam connection that supported a significant portion of the home’s second-storey exterior wall and roof. SSEL’s rapid deployment allowed for an immediate assessment of the “Unsafe Structure” condition, providing the homeowners with essential life-safety guidance and a technical path toward stabilization.

Emergency Assessment & Remediation

The site review uncovered a high-risk failure mechanism caused by advanced dry rot at the base of a built-up wood post. SSEL’s engineered solution focused on immediate stabilization and long-term structural restoration:

  • Temporary Shoring: SSEL issued an immediate instruction to install a temporary shoring post. This measure was designed to arrest the ongoing collapse and provide a safe working environment for permanent repairs.
  • Structural Replacement: The remediation plan specified the removal of the failed timber and the installation of a new, high-capacity adjustable steel column (telepost) meeting CAN/CGSB-7.2 standards. This ensures the point load from the wide-flange steel beam is securely transferred to the foundation.
  • Moisture & Fungicide Protocol: Because the failure was rooted in dry rot, SSEL mandated a strict cleaning and fungicidal treatment protocol for all adjacent surfaces—including the foundation and floor joists—to prevent the spread of decay.
  • Regulatory Compliance: As part of our commitment to public safety, SSEL coordinated with the homeowners to ensure repairs were executed within a strict two-week window, preventing the need for an official “Unsafe Building” report to the City of Ottawa.

Through this emergency engagement, SSEL provided the precise technical instructions needed to save a high-value residential asset and ensure the continued safety of its occupants.